buildtoo_house
ED. VISCONDE DA LUZ I

DESCRIÇÃO
O edifício localiza-se na Baixa de Coimbra, inserido num plano urbano apertado característico das zonas históricas. Tratando-se de uma reabilitação integral do edifício a sua área de implantação não apresenta qualquer alteração. O propósito primordial da intervenção é devolver e melhorar as condições de habitabilidade do edifício que neste momento não existem.

Constituído maioritariamente por paredes meias com os edifícios adjacentes, tem como excepções o alçado principal virado para o arruamento público e uma pequena secção do alçado lateral virado para um saguão que permite a entrada de luz natural nos compartimentos mais a tardoz.

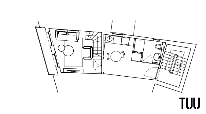
A ideia do projeto prevê resolver com uma peça continua de mobiliário todo o programa das habitações que se pretendem a custos controlados.
FICHA TÉCNICA
Dono de Obra | Particular
Localização | Coimbra
Tipo | Reabilitação de Edíficio
Área | 188m²
Valor da Empreitada | 150 00,00€
Ano de Projeto | 2017
Ano de Construção | 2019

SERVIÇOS
Arquitetura
Gestão e Negociação de Empreitada
Acompanhamento e Fiscalização de Obra
Coordenação de Segurança
Planta 2
Imagem da cozinha
Imagem da Sala
Imagem da sala
Imagem do Quarto
 
contador free